Ideal for office and living! Unfurnished one-room apartment 47m2 for rent in the City quarter Podgorica
Ideal for the office! Unfurnished one-bedroom apartment 47m2 in the…
250€
Prodato
Apartmani se nalaze u kompleksu koji se očekuje 2021. godine sa kojeg se pruža prelijep pogled na more i brda u Rafailovićima. To je jedinstven objekat koji oduševljava svojom ljepotom i elegancijom. Nalazi se u blizini magistrale na minut do mora. Ovde vlada neopisiva atmosfera mira i spokoja gdje je blaga mediteranska klima kombinovana sa svježim vazduhom koji dopire sa planina. Plaža u Rafailovićima je veoma prostrana, pješčana i šljunkovita stvorena za pravo uživanje odakle se pruža prelijep pogled na pučinu. Objekat posjeduje građevinsku i upotrebnu dozvolu. U blizini ima nekoliko marketa. Budva je udaljena 5-6km, a najbliži aerodrom se nalazi u Tivtu.
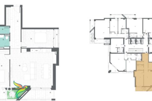
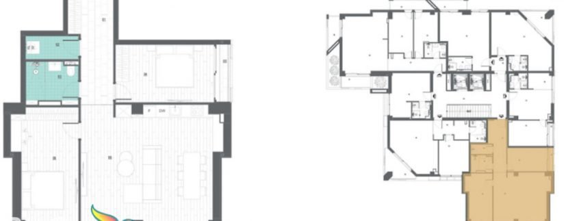
U pitanju je urbani gradski prostor u duhu Mediterana. Oblikovanje objekta kao i materijali su u skladu sa visokim principima u građevinarstvu. U cilju očuvanja identiteta mediteranskog ambijenta primjenjeni su prirodni lokalni građevinski materijali – kamen za oblikovanje fasade. Prostor će biti obogaćen zelenilom u ambijentu gdje možete uživati ispod maslina. Kompleks raspolaže sa: recepcijom, kafeterijom, tri nivoa garaža, garaže sa liftom, 3 lifta, P + 9 etaža, pogled na more i mnogo više, što Vam omogućava luksuzan život. Svečano otvaranje se očekuje na ljeto 2021. godine. U pitanju su dva ista apartmana od 92,99m2. Garažna mjesta će se kretati između 15 i 20 h.€, a pojedinačna garažna mjesta posjeduju lift (takozvane automakaze), na taj način mogu 2 automobila, jedno iznad drugog, sigurno da parkiraju. Mehanizam lift koštaće okvirno 2,5 h. € extra.
Svidjelo nam se na koji način je planirana izgradnja, kompleks i ambijent oko kompleksa sa puno zelenima, kao i dobra cijena za prodaju sa vrhunskim i kvalitetnim materijalima prema modernim standardima. Stoga, možemo zaključiti da će ova nekretnina zadovoljiti mnoge ukuse u kojoj ćete uživati.
Prodaje se za keš. Predlog dinamike plaćanja:
Cijene stanova variraju od 1.950 €/m2 do 2.700 €/m2.
Pisco Real Estate agencija će Vam sa zadovoljstvom pokazati ovu nekretninu ili pružiti dodatne informacije ako vam se ista dopada. Kontaktirajte našeg agenta.
Ideal for the office! Unfurnished one-bedroom apartment 47m2 in the…
250€
Prelijepo namješten luksuzan jednosoban stan u Bečićima Lokacija Apartmani se…
104,400€
Owning a home is a keystone of wealth… both financial affluence and emotional security.
Suze Orman